Beschrijving
VANWEGE DE OVERWELDIGENDE BELANGSTELLING VOOR DEZE WONING IS HET NIET MEER MOGELIJK EEN BEZICHTIGING AAN TE VRAGEN! WE ZULLEN U OP DE RESERVELIJST PLAATSEN.
WONEN IN HET MOOIE DRENTHE, RUST.... RUIMTE.... RELAXEN.... GENIETEN
Prachtig gelegen rietgedekte vrijstaande woning met royale oprit, multifunctioneel bijgebouw (88 m2), kapschuur met ruimte voor twee auto's, houten tuinhuis, grote kas en houten berging op een royale kavel van 3071 m2. Het geheel ligt op een schitterende landelijke locatie met rondom vrij uitzicht en heeft een fraaie tuin die maximale privacy biedt. Ondanks de rustige ligging in een landelijke omgeving zijn alle noodzakelijke voorzieningen op korte afstand bereikbaar.
De woning beschikt aan de voorzijde over een aangebouwde tuinkamer en heeft aan de achterzijde een royale serre. Hier kunt u het jaar rond heerlijk vertoeven en genieten van het schitterende uitzicht over de stijlvol aangelegde tuin. De ruime hal/bijkeuken geeft toegang tot een moderne toiletruimte en een gezellige woonkeuken. Vanuit de woonkeuken loopt u door naar een U-vormige woonkamer, die uitzicht op de tuin rondom biedt en waarin een houtkachel aanwezig is. Via de open trap komt u op de 1e verdieping die ruimte biedt aan twee prettige lichte slaapkamers en een moderne luxe badkamer.
Het in de tuin aanwezige bijgebouw is in 2021 geheel opnieuw opgebouwd en met oog voor detail gemoderniseerd, zodat het volledig voldoet aan de eisen van deze tijd. Het geheel is instapklaar en biedt u veel mogelijkheden, zoals o.a. extra woonruimte, bedrijf aan huis, B&B, mantelzorg, praktijkruimte, atelier etc.
Maatvoering luxe multifunctioneel bijgebouw:
Woonkamer incl. badkamer: 46 m2
Kantoorruimte: 23 m2.
Inpandige garage: 19 m2.
Inhoud: 343 m3.
Kortom: bent u op zoek naar een landelijk gelegen sfeervolle woning met een tuin waar u heerlijk kunt relaxen en een modern luxe multifunctioneel bijgebouw met vele opties? Dan moet u deze woning gezien hebben.
Indeling
Entree/tuinkamer, moderne toiletruimte met zwevend toilet en fonteintje, hal/bijkeuken v.v. kastenwand met witgoedaansluitingen en HR-combi ketel, dichte woonkeuken met U-vormig keukenblok v.v. diverse inbouwapparatuur: koelkast, diepvries, vaatwasser, combi-oven, 5-pits gaskookplaat en afzuigkap, U-vormige woonkamer met open trap naar de 1e verdieping, tuingerichte serre v.v. schuifpui en vloerverwarming.
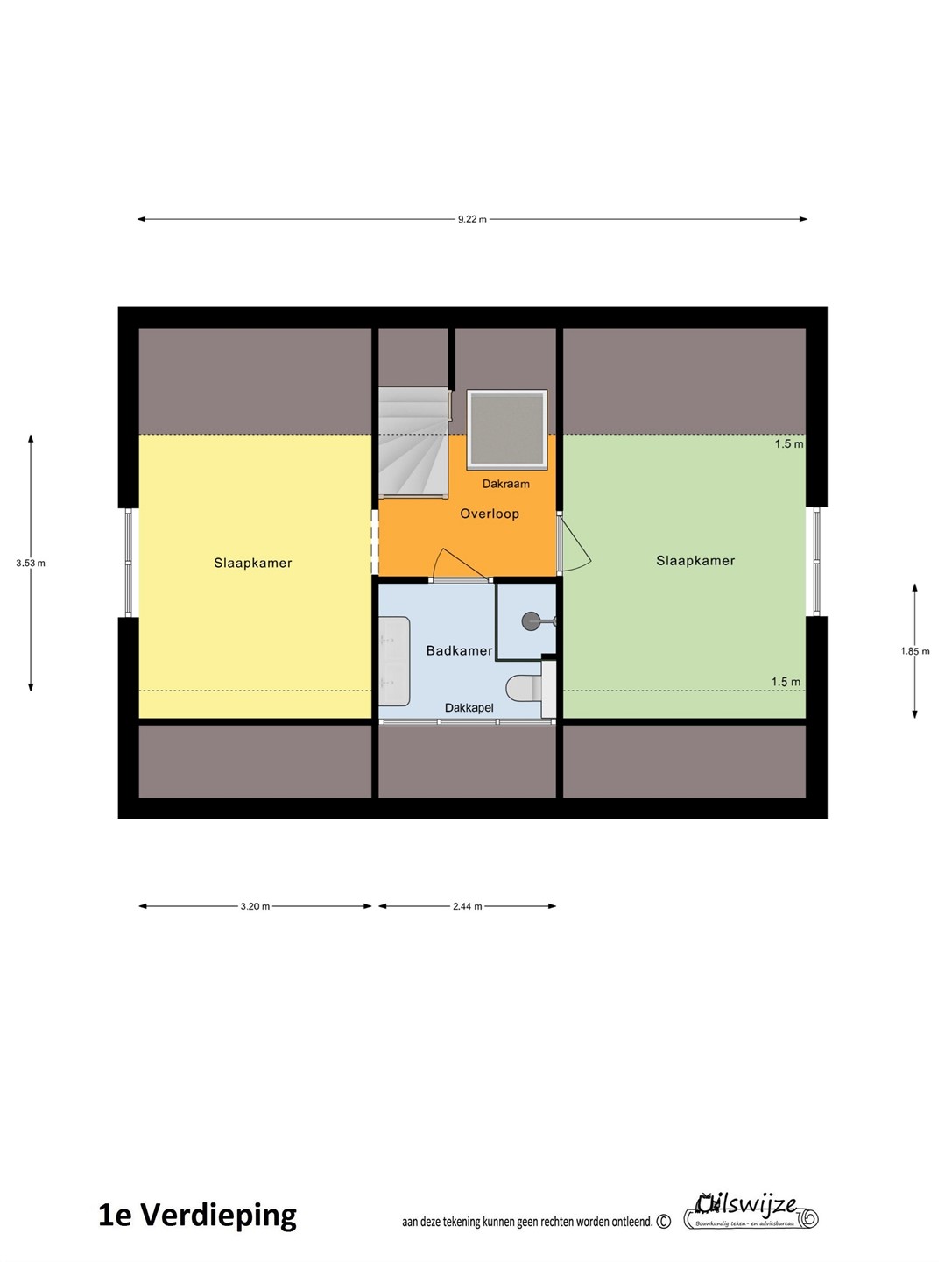
Eerste verdieping
Overloop v.v. dakraam, slaapkamer 1, moderne badkamer (2019) met extra brede doucheruimte, 2e zwevend toilet, dubbel wastafelmeubel en vloerverwarming, slaapkamer 2
Bijzonderheden
Volledig geïsoleerd.
Grotendeels HR++, deels dubbele beglazing.
Begane grond grotendeels v.v. kunststof kozijnen (met houtnerf).
Buitenschilderwerk 2019.
Moderne toiletruimte 2019.
Moderne badkamer 2019 voorzien van vloerverwarming.
1e verdieping gemoderniseerd en v.v. nieuwe elektra in 2019.
Kunststof kozijnen 1e verdieping incl. HR++ beglazing 2005.
Plafondisolatie en isolatie schuine wanden (steenwol) 1e verdieping.
Deel van de rieten kap behoeft onderhoud binnen 2 à 3 jaar (offerte aanwezig).
Energielabel C; na het opmaken van het label is er vloerisolatie in de woning aangebracht (2020).
Carport v.v. elektriciteit/verlichting.
Buitenverlichting rondom woning en bijgebouw.
Kruipruimte aanwezig onder de gehele woning (behalve serre en tuinkamer), hoogte ca. 1.50 m.
Tuinkamer vernieuwd in 2019.
Het perceel is ca. 85 m lang en ca. 36 meter breed.
Indeling luxe multifunctioneel bijgebouw (2021):
- kantoorruimte met eigen entree
- inpandige garage met elektrisch bedienbare roldeur
- moderne badkamer v.v. inloopdouche, zwevend toilet en badmeubel
- woon-/slaapkamer v.v. keukenblok met koelkast (niet gebruikt) en tuindeur
Bijzonderheden bijgebouw:
- volledig geïsoleerd (dak- en muur isolatie 9 cm pur, vloeren minimaal 20 cm isolatie)
- volledig v.v. kunststof kozijnen en buitendeuren incl. HR++ beglazing
- vloerverwarming in woonkamer en badkamer
- eigen HR-combi ketel bouwjaar 2021
- eigen nieuwe meterkast met v.v. aparte wifi-groep
- 1 gigabyte internetaansluiting (glasvezel)
- alarminstallatie
In de tuin zijn een houtopslag, vijver incl. op afstand bedienbare verlichting, kas, fruitbomen, tuinhuis, houten berging (2023) en fraaie hoekjes aanwezig.
Voorzieningen bevinden zich in het nabij gelegen Exloo, Borger, Stadskanaal en Emmen.